- Maisons
- Drappiers one
- En savoir plus
- Année de réalisation :
- 2016
- Localisation :
- Bondues
- Client :
- Privé
- Coût HT/m2 :
- /m2
- Type de construction :
- ossature bois, chauffage par pompe à chaleur, menuiseries aluminium
Bondues # les Drapiers 1
C’est en 3è rang que s’implante ce petit lotissement de 7 lots.
Acquéreur du lot J les clients souhaitent y construire leur maison. La réglementation du lotissement, l’orientation et les dimensions de terrain orientent fortement l’organisation intérieure des maisons :
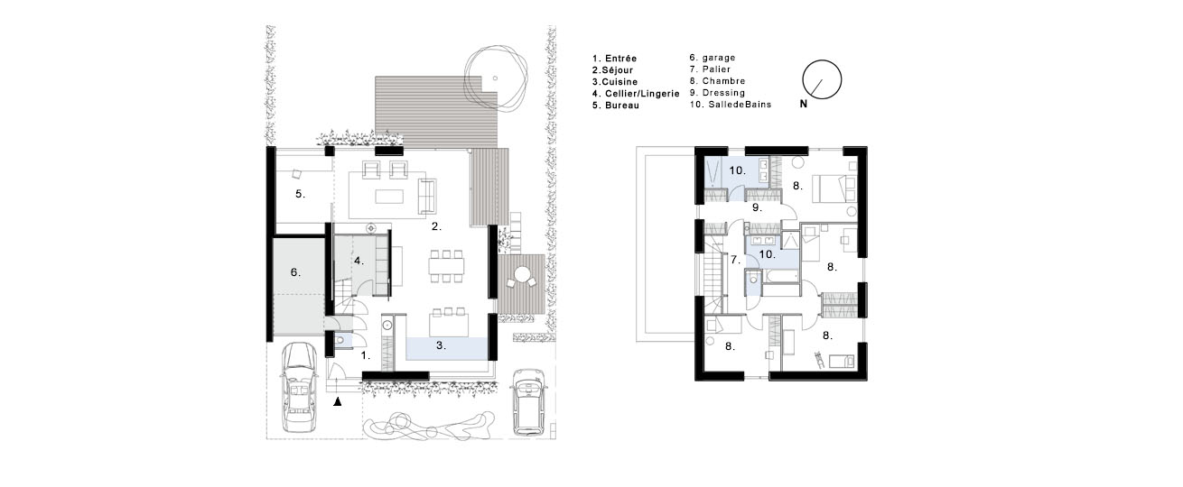
Un volume bas, regroupant garage et pièce technique précédé d’un car-port s’implante en limite nord, le long de la voirie. Le volume principal s’implante en retrait de 3m sur une profondeur de 12m et espacé de 3m de la limite Sud.
Ainsi, seuls les matériaux, les ouvertures et l’écriture architecturale donne à chaque maison son identité.
Pour le lot J, l’ossature bois a été retenue pour ses vertus écologiques et de rapidité de chantier. Alors que l’entrée et la cuisine occupent l’espace avant, la vue sur le jardin et la campagne mouvalloise est laissée au salon et à la salle à manger. De grandes et larges baies inondent les pièces à vivre de lumière et de soleil tout en étant protégé de la sur chauffe par le débord du volume de l’étage. En façade avant, un angle totalement vitré marque l’entrée alors qu’un bandeau horizontal souligne le plan de travail de la cuisine tout en préservant l’intimité intérieure.
A l’étage, 3 chambre d’enfants et 1 appartement parental (regroupant salle de bain dressing et chambre) s’organise autour d’un palier-bibliothèque. Une grande baie fixe, implantée dans la montée d’escalier illumine aussi bien le palier de l’étage que l’entrée au rez de chaussée.
Pour les matériaux, l’ossature bois est habillée d’un bardage mélèze ajouré et d’un panneau de bakélite noir, les châssis sont en aluminium laqué noir, le vitrage est double, isolé par une lame d’argon.
Comme dans chaque lotissement, la végétation apporte beaucoup ; tant pour la protection de l’intimité de chaque co-lotis que sur la mise en valeur de leur habitation.
Année de réalisation : 2016
Localisation : Bondues
Client : privé
Coût HT/m2 :
Type de construction : ossature bois, Bardage : mélèze ajouré et Arpa noir, menuiserie aluminium laqué











