- Maisons
- Drappiers two
- En savoir plus
- Année de réalisation :
- 2016
- Localisation :
- Bondues
- Client :
- Privé
- Coût HT/m2 :
- /m2
- Type de construction :
- structure béton, chauffage par pmope à chaleur, menuiseries aluminium
Bondues # les Drapiers 2
C’est en 3è rang que s’implante ce petit lotissement de 7 lots.
Acquéreur du lot H les clients souhaitent y construire leur maison. La réglementation du lotissement, l’orientation et les dimensions de terrain orientent fortement l’organisation intérieure des maisons :
Un volume bas, regroupant garage et pièce technique précédé d’un car-port s’implante en limite nord, le long de la voirie. Le volume principal s’implante en retrait de 3m sur une profondeur de 12m et espacé de 3m de la limite Sud.
Ainsi, seuls les matériaux, les ouvertures et l’écriture architecturale donne à chaque maison son identité.
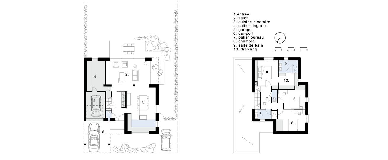
Pour le lot H, alors que l’entrée se cale sous le car-port, la cuisine s’oriente sur l’avant et laisse au salon et à la salle à manger la vue sur le jardin et la campagne mouvalloise.
3 chambres dont un appartement parental prennent place à l’étage, desservis par un palier-bureau. Une grande baie orientée nord permet d’éclairer le palier ; de par sa sur-dimension et son implantation dans l’escalier, l’entrée et le vestibule, implantés au rez de chaussée, profitent également de cet éclairage naturel
Pour les matériaux, une brique à joints creusés se marie avec un bardage bakélite gris basalte et des châssis alu laqué gris plomb.
Comme dans chaque lotissement, la végétation apporte beaucoup ; tant pour la protection de l’intimité de chaque co-lotis que sur la mise en valeur de leur habitation.
Année de réalisation : 2016
Localisation : Bondues
Client : privé
Type de construction : Maçonnerie brique Nelissen, bardage Arpa gris basalte, menuiserie aluminium laqué









