- Maison individuelle
- maison contemporaine - Au bord de la Lys
- En savoir plus
- Année de réalisation :
- 2007
- Localisation :
- Bousbecque
- Client :
- Privé
- Coût HT/m2 :
- /m2
- Type de construction :
- maçonnerie et structure bois, isolation laine de bois, bardage mélèze et panneaux bakélisé, menuiseries extérieures aluminium, chauffage électrique au sol
La maison s’installe sur les bords de Lys, en lisière d’un bois sur un terrain en légère déclivité vers l’eau.
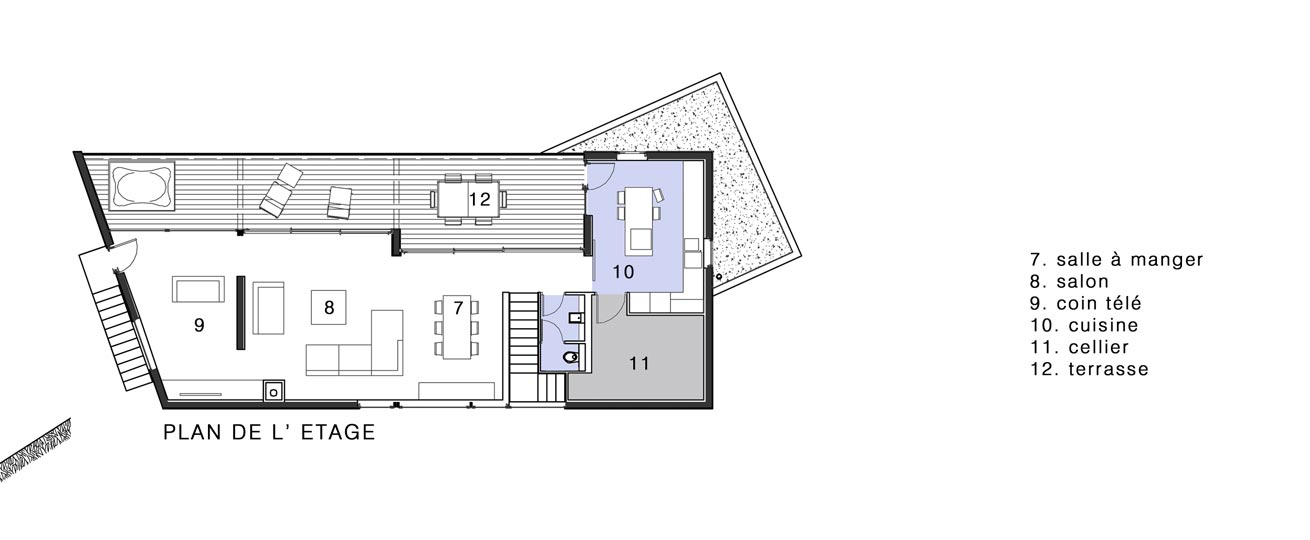
Afin de profiter au maximum de la beauté du site, la typologie de la maison s’est inversée : les chambres ont pris place au rez de chaussée ; les pièces à vivre, la terrasse et le spa investissent le 1er étage où le passage des péniches et des oies sauvages n’en est que plus émerveillant….

















