- Maison de ville
- Mc Black
- En savoir plus
- Année de réalisation :
- 2010
- Localisation :
- Lille
- Client :
- Privé
- Coût HT/m2 :
- /m2
- Type de construction :
- Ossature bois
A l’inverse de l’hangar, implanté en fond de parcelle et offrant un parking à l’avant, la maison renforce le front à rue et offre un jardin à ses occupants, en s’implantant à l’alignement de l’ensemble du bâti urbain.
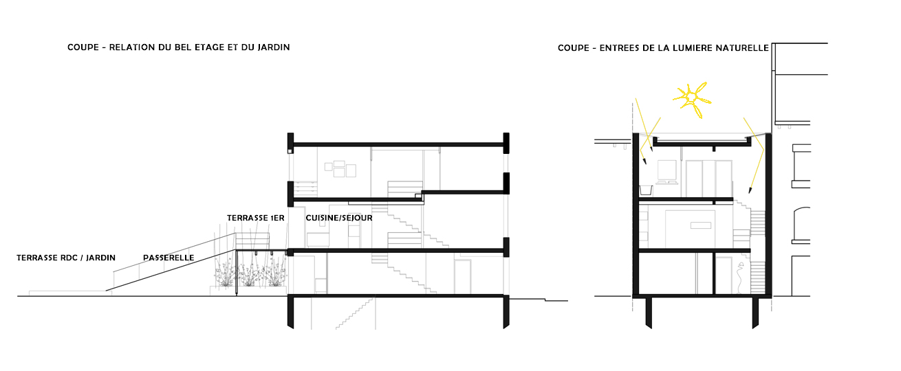
Maison de bel étage, chacun des niveaux définit une fonction distincte : service et stockage, vivre, dormir, se détendre…
Colonne vertébrale de la maison, une cage d’escalier liaisonne chaque niveau depuis le rez de chaussée jusqu’au toit (où une extension offrira un solarium à plus de x mètres de haut) et se transforme en puits de lumière laissant pénétrer par ricochet la lumière naturelle jusqu’au cœur de chacun des niveaux.

















