- Maisons
- riva-architectes/maison architecte/maison cubique contemporaine/Matt House
- En savoir plus
- Année de réalisation :
- 2017
- Localisation :
- Genech
- Client :
- Privé
- Coût HT/m2 :
- /m2
- Type de construction :
- structure béton, chauffage par pmope à chaleur, menuiseries aluminium, sol en résine
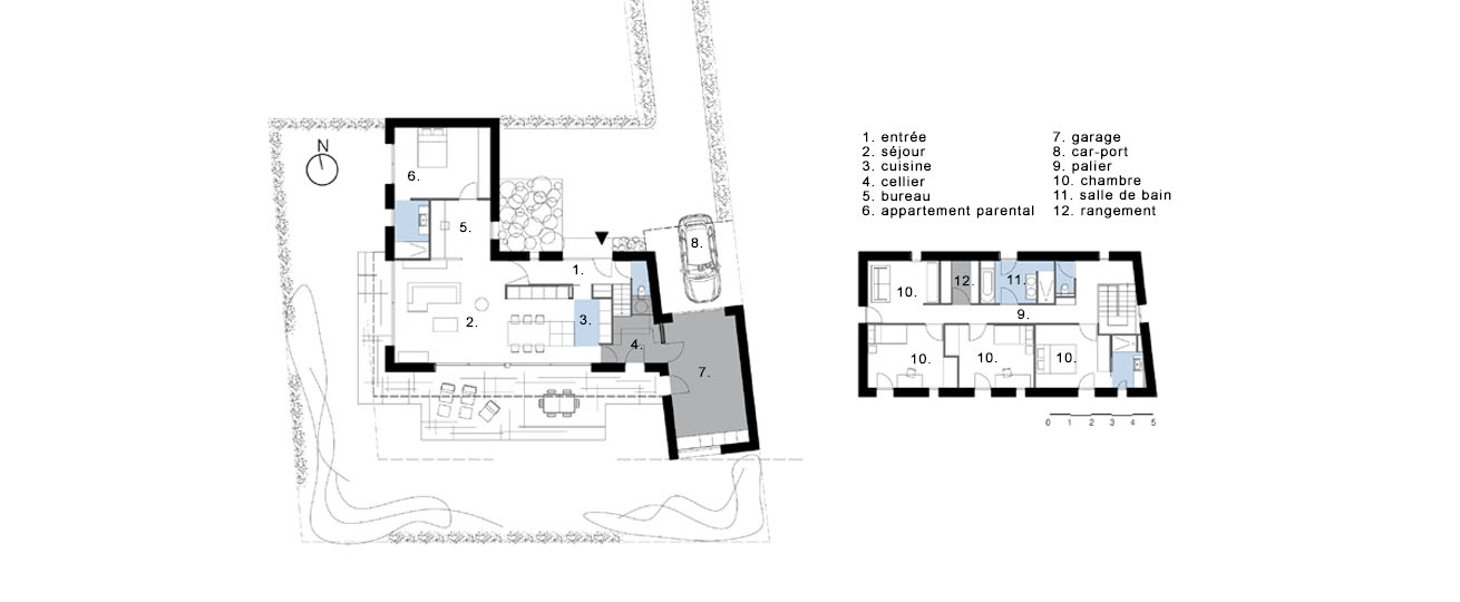
Terrain issu d’une division, le client a choisi les 548 m2 situés en 2è rang. L’orientation, l’allée d’accès, la réglementation forcent l’implantation de la maison en L sur 2 des 4 limites séparatives.
Un volume principal sur 2 niveaux abrite les pièces à vivre au rez-de-chaussée et les 4 chambres d’enfants à l’étage. 2 volumes bas (garage-pièce technique et appartement parental) amarrent la maison aux limites et délimitent ainsi une zone pavée d’accueil et stationnement sur l’avant et le jardin clos orienté plein Sud.
Maçonnerie et ossature bois ont été les réponses techniques à quelques difficultés ; brique, enduit et bardage habillent les différents volumes pour une harmonie et une parfaite intégration à l’environnement.
Maison présentée dans le cadre des journées A Vivre https://www.journeesavivre.fr/













