- Maisons
- maison contemporaine - MV2
- En savoir plus
- Année de réalisation :
- 2009
- Localisation :
- Wasquehal
- Client :
- Privé
- Coût HT/m2 :
- /m2
- Type de construction :
- Structure bois, isolation laine de bois, bardage zinc, chêne et panneaux bakélisé, menuiseries extérieures aluminium, chauffage gaz
Le projet de maison individuelle s’implante sur un terrain situé dans une zone d’activité mélangeant programme de bureaux, logements sociaux et logements individuels, favorisant ainsi la mixité. La difficulté du programme consistait à concilier l’apport généreux de lumière, l’ouverture maximale sur les espaces verts extérieurs tout en préservant l’intimité des occupants vis-à-vis des bâtiments de bureaux avoisinants ou des programmes de logement sociaux.
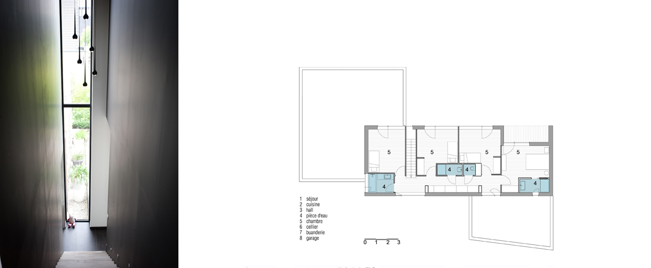
Le projet présente ainsi un séjour au rez-de-chaussée en triple orientation : Est / Sud / Ouest, préservé des vis-à-vis par un aménagement paysager pensé avec le projet : haies périphériques pour les vis-à-vis proches, bosquets d’arbustes ou arbres de haute tige pour les vis-à-vis lointains ou plus hauts. A l’étage, les pièces de nuit s’orientent plein Est, tournées vers les jardins voisins tandis que la circulation, qui les dessert, s’éclaire naturellement à l’Ouest par deux grandes baies vitrées à ses extrémités. L’étage est ainsi volontairement aveugle au Nord pour des raisons thermique et au Sud pour un problème de vue sur le centre commercial visible de l’étage en contre bas du terrain.
Plein Sud les ouvertures sont protégées des rayons solaires, hauts l’été, par des auvents ou par des stores extérieurs intégrés derrière les bardages de façades. A l’Est, pour les chambres, des stores intérieurs sont intégrés dans des réservations au plafond. Ils possèdent une toile enduite d’un réflecteur thermique côté extérieur et se positionnent à une certaine distance du vitrage pour renvoyer une bonne partie du rayonnement à l’extérieur. A l’ouest, des stores verticaux intérieurs, également munis d’une toile enduite réfléchissante, permettent de réguler la lumière et de contrôler les vis-à-vis sur les logements sociaux voisins. En plus d'une VMC double flux réversible, insufflation d’air frais la nuit, les ouvertures de façades sont conçues et implantées pour permettre une ventilation forcée pour le confort d’été. Les ouvertures oscillo-battantes à chaque extrémité du couloir à l’étage, orientées à l’ouest face aux vents dominants permettent une ventilation naturelle supplémentaire en cas de besoin. La maison obtient le niveau de performance bâtiment basse consommation : enveloppe performante, étanchéité à l’air par membrane, chauffage basse température, chaudière à condensation, VMC double flux, chauffage d’appoint au bois…
L’enveloppe de façade est constituée d’une ossature bois, remplie de façon innovante de plusieurs couches d’isolants de densités différentes, allant du plus dense au moins dense sur trois couches. Les densités permettant de favoriser le déphasage thermique et d’assurer la restitution de la chaleur emmagasinée la journée dans les murs, la nuit dans le logement. Les larges surfaces vitrées permettent de capter les apports de chaleur gratuits l’hiver. L’ensemble des doubles vitrages est traité en basse émissivité et possède une face feuilleté permettant d’améliorer la protection contre l’effraction mais également le confort acoustique.
Les matériaux constituant la maison ont été choisis pour leur performance et leur pérennité. Les façades sont recouvertes d’un bardage en zinc à pose agrafée ou de bardeaux en chêne massif brut (issu de parties de dosses inexploitables par les scieries). Les toitures terrasses sont étanchées par de la membrane PVC.Toutes les menuiseries sont en aluminium laquée. L’ensemble des matériaux constituant l’enveloppe ne nécessite aucun entretien et présente des durées de vie supérieures à 50 ans.



























