- Transformation d'une surface de bureau
- Appartement à Lille
- En savoir plus
- Année de réalisation :
- 2008
- Localisation :
- Client :
- Privé
- Coût HT/m2 :
- /m2
- Type de construction :
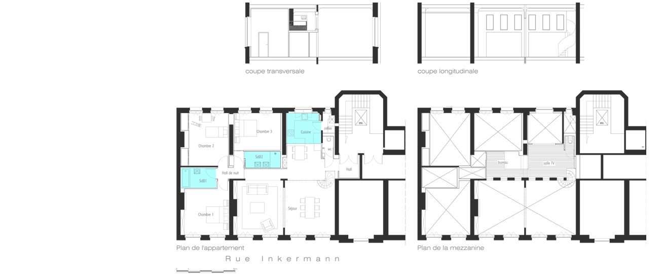
Transformation d'une ancienne surface de bureaux en appartement.
Mise à nue de l'ancienne surface de bureau, amenée des fluides et des réseaux.
Percements des porteurs de refends afin d'amener de la lumière dans l'ancien couloir de distribution au centre.
Rénovation des menuiseries intérieures et des cheminées.
Création d'une mezzanine : bureau et salle télévision.
Décoration intérieure, design de l'escalier hélicoïdal et choix des luminaires.















