- Transformation d'une grange agricole
- La Grange
- En savoir plus
- Année de réalisation :
- 2004
- Localisation :
- Client :
- Privé
- Coût HT/m2 :
- /m2
- Type de construction :
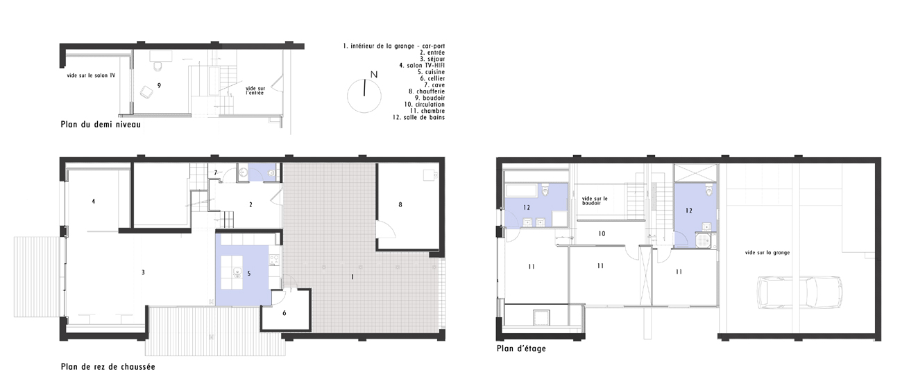
CONSTRUIRE A L'INTERIEUR
Pour atteindre cet équilibre entre maison et grange, plutôt que d’être disparates et de polluer le volume aveugle de la grange, les ouvertures ont été plus importantes mais ponctuelles.
Plutôt que d’ouvrir chaque pièce sur l’extérieur, une seule et grande ouverture permet d’éclairer plusieurs pièces. Ainsi, un pan de mur a été entièrement démonté entre deux fermes de charpente et permet d’éclairer la cuisine, le séjour et 2 chambres. Cela a permis sur ces 2 travées de faire apparaître la boîte ‘habitation’ et sa façade par rapport à la peau de brique.
Sur le versant nord, en limite de propriété, une verrière a été installée permettant d’éclairer le car-port, l’entrée et le boudoir ainsi que la circulation des chambres. Le pignon ouest, partie la plus abîmée de la grange, a, quant à lui, été reménié sans basculer dans le faux-semblant. Une grande baie éclaire le salon et un jeu de brique existante, bardage et béton compose cette intervention.
D’un point de vue constructif, le bois nous permettait une grande liberté d’expression et il convenait parfaitement au type de mise en oeuvre demandé.
Le sol de la grange n’étant pas horizontal, un plancher bois sur pieux métalliques battus a été construit sur la partie de l’habitation, un demi-niveau : le boudoir, a été créé sur la cave semie enterrée existante, un poteau bois a été mis en place au droit de la ferme dont l’appui avait été démonté. A l’étage, la souplesse du bois nous a permis de jongler entre les bois de charpentes et de disposer les pièces de l’étage entre ces entraits.
Le bois a également été utilisé en bardage ; brut de sciage il habille la chaufferie et le cellier, sa texture brute est une réponse à la brique laissée nue dans le car port.
Pour les façades de la boîte ‘habitation’, un bardage lisse, blanc à grand calepinage a été mise en oeuvre en opposition à la brique rouge, rugeuse et de petits calepinage.
Tout comme la brique date le volume en début de siècle dernier, le bardage mineralis - éternit marque notre intervention en ce début de XXIè siècle.
http://www.caue-observatoire.fr/



























